San Pedro del Pinatar:
Obergeschoss-Wohnungen mit 3 Schlafzimmern, 2 Bädern, Dachterrasse und Gemeinschaftspool
Objekt-Nr.: HA-SAN-160-A03









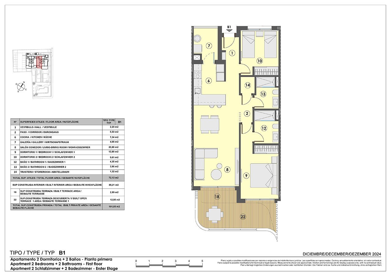
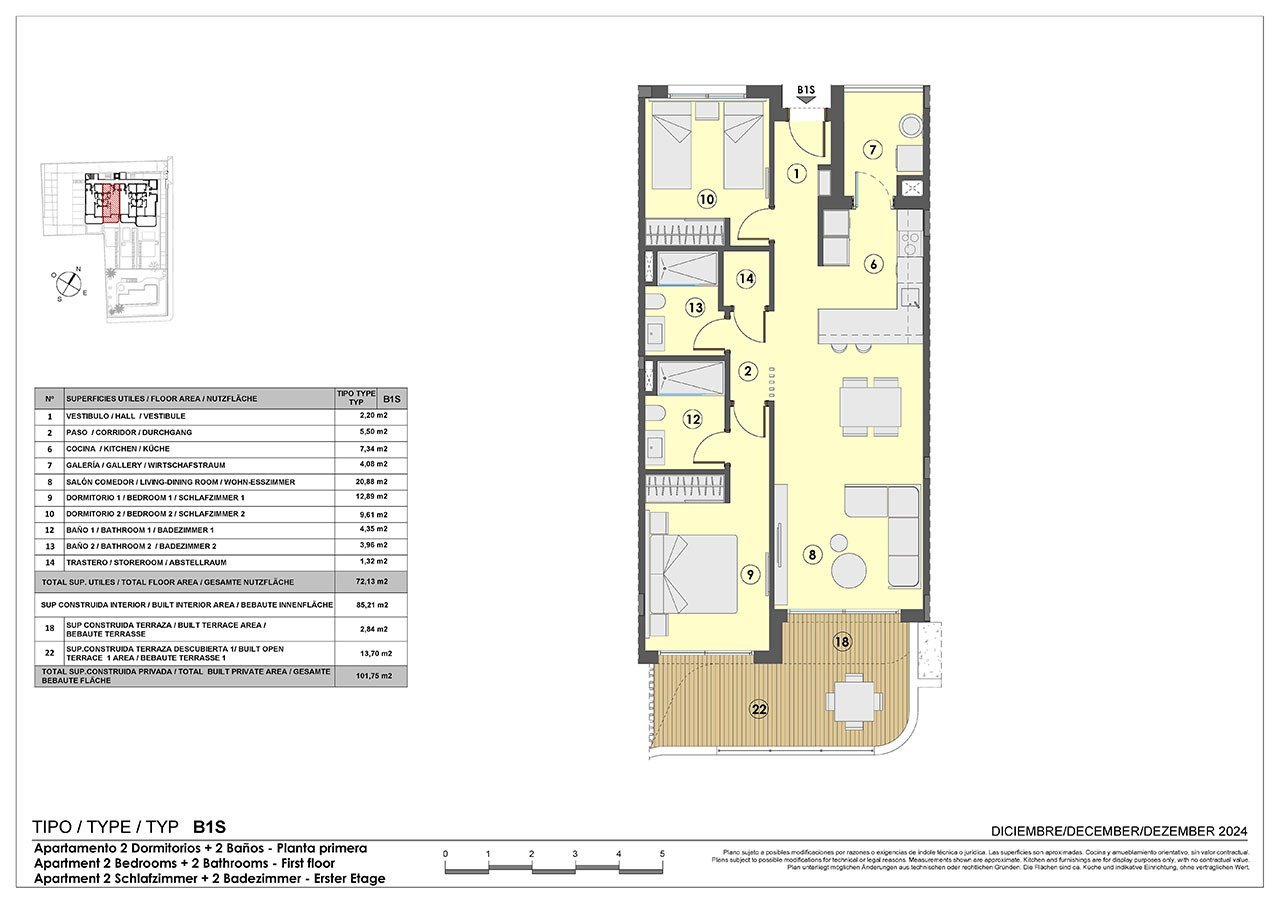
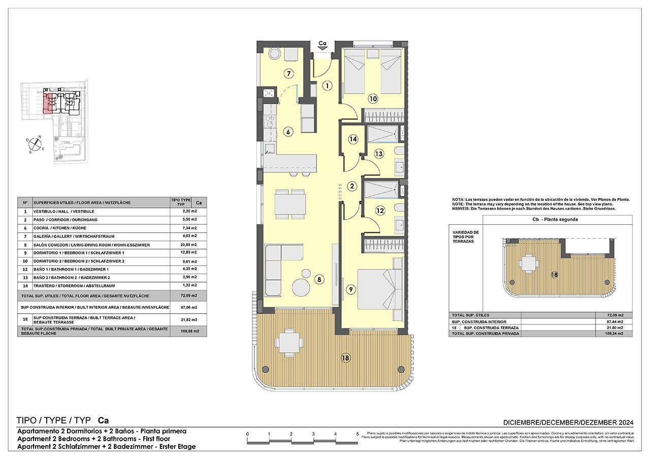
Grundriss

Grundriss












Preis:
299.900 €
Wohnfläche ca.:
166 m²
Zimmeranzahl:
4
Diese hell und freundlich gestalteten Obergeschoss-Wohnungen verfügen über eine konstruierte Fläche von ca. 166 m² - 190 m² (verschiedene Modelle, inklusive Terrassen) mit
3 Schlafzimmern,
2 Bädern (1 en-suite),
1 Wohn-/Esszimmer mit
moderner Einbauküche,
1 - 4 Balkonen und
1 Dachterrasse (ca. 75 m² - 84 m²).
Die Wohnanlage besteht aus nur 10 wunderschönen Wohnungen mit 1 oder 3 Schlafzimmern und 1 oder 2 Bädern. Unweit der Anlage befinden sich Einkaufsmöglichkeiten sowie diverse einladende Bars und Restaurants.
Wohnungstyp: Penthouse
Provisionspflichtig: nein
Küche: Einbauküche, offen
Anzahl Schlafzimmer: 3
Anzahl Badezimmer: 2
Terrasse: 2
Garten: ja
Pool: ja
Keller: nein
Anzahl der Parkflächen: 1 x Außenstellplatz
Möbliert: Teilmöbliert
Qualität der Ausstattung: gehoben
Bodenbelag: Fliesen
Zustand: Erstbezug
Unsere Angebote sind für Käufer provisionsfrei!
Bei der Ausarbeitung unserer Angebote gehen wir mit größter Sorgfalt vor. Die von uns gemachten Informationen beruhen auf Angaben unserer Auftraggeber, für deren Richtigkeit und Vollständigkeit wir keine Gewähr bzw. Haftung übernehmen können. Zwischenverkauf, Preisänderungen und Irrtümer sind vorbehalten. Bei den Preisangaben zu unseren Immobilien handelt es sich um Nettopreise zuzüglich Mehrwertsteuer (I.V.A.) bei Neubauten oder Grunderwerbssteuer (I.T.P.) bei Bestandsimmobilien.
Das könnte Ihnen auch gefallen

Alfred Huber - Internationale Immobilien
Telefon: (08654) 494046
Fax: (08654) 494047





































