Cala Ratjada:
Appartements mit 2 Schlafzimmern, 2 Bädern, Fußbodenheizung in Bädern, Klimaanlage und Gemeinschaftspool nur 250 m vom Meer
Objekt-Nr.: HA-MLN-164-A01







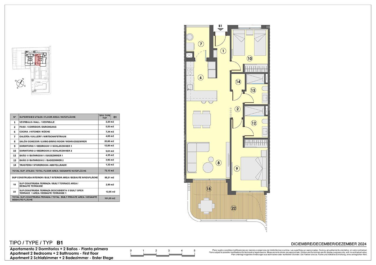
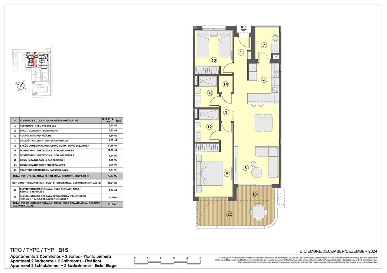
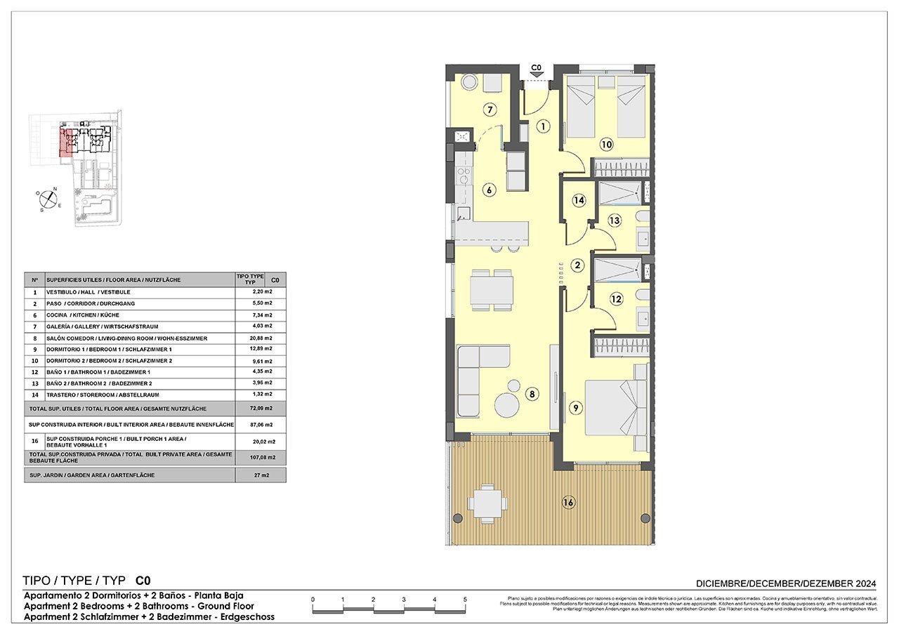
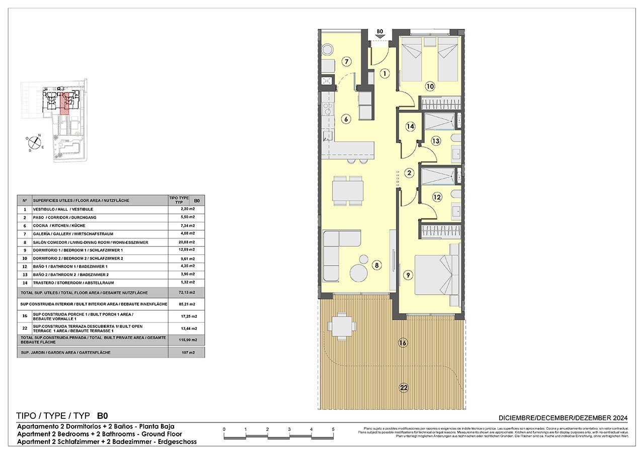
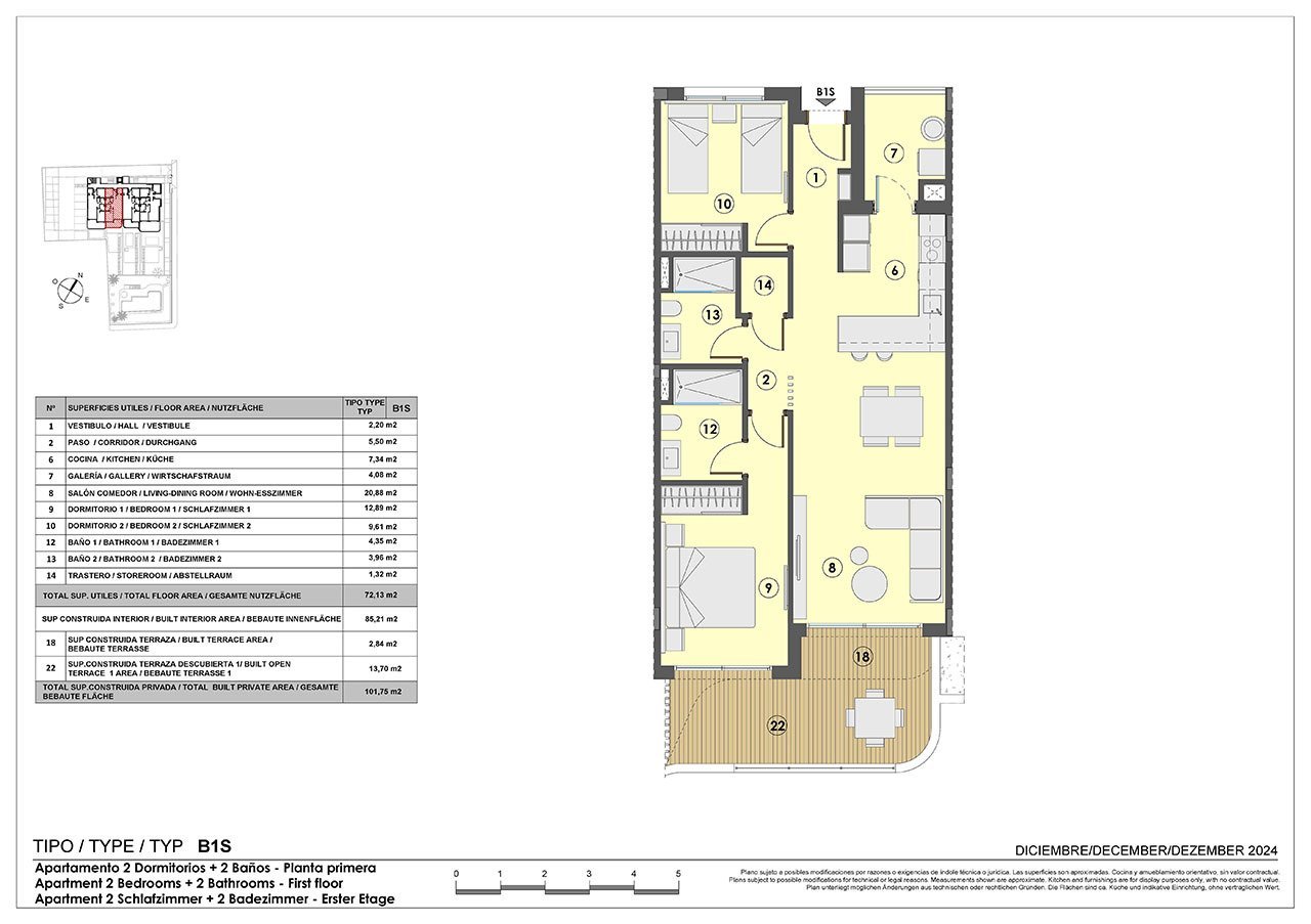
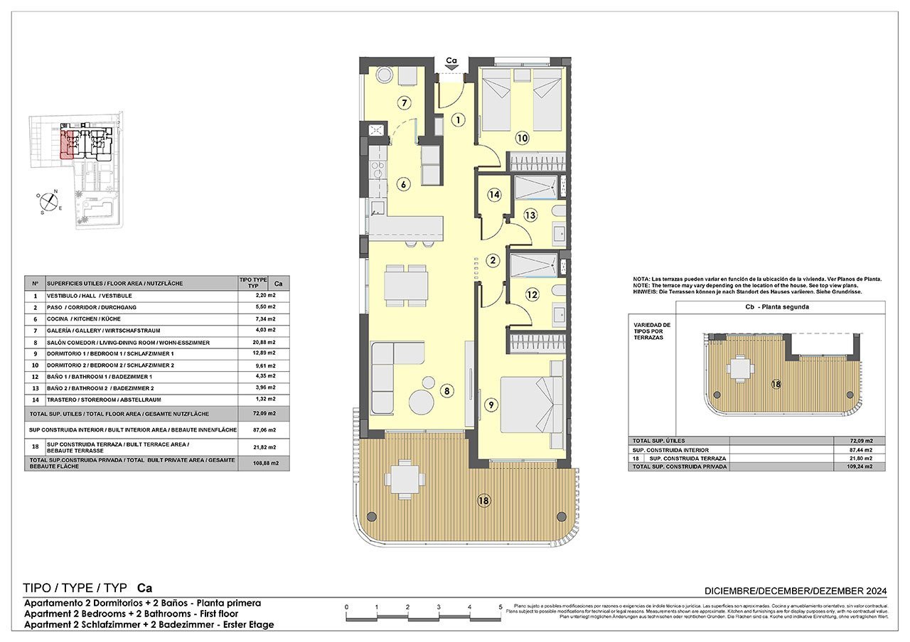
Grundriss

Grundriss

Grundriss

Grundriss

Grundriss

Grundriss














Preis:
569.000 €
Wohnfläche ca.:
101 m²
Zimmeranzahl:
3
Diese fantastischen Wohnungen verfügen über eine konstruierte Fläche von 101 m² - 115 m² (verschiedene Modelle, inklusive Terrassen) mit
2 Schlafzimmern,
2 Badezimmern (1 en-suite),
1 Wohn-/Esszimmer mit
moderner Einbauküche,
1 Hauswirtschaftsraum und
1 Terrasse (ca. 15 m² - 30 m²).
Diese schöne Wohnanlage befindet sich in Cala Ratjada (Capdepera), nur 250 Meter entfernt von Cala Lliteres in einer einzigartigen beschaulichen Naturumgebung gegenüber dem Park Sa Gravera. Diese Wohnanlage umfasst 14 Wohneinheiten unterschiedlicher Typen: Wohnungen mit Garten oder Terrasse, Penthouse-Wohnungen mit Dachterrasse und Maisonette-Wohnungen mit Dachterrasse. Die Gemeinschaftsbereiche bieten einen herrlichen Swimmingpool mit Liegebereich für Erwachsene und Kinder, einen Whirlpool, Grünanlagen und Stellplätze für Fahrräder und Pkws. Alle Wohnungen sind nach Südosten ausgerichtet und dank ihrer großen Fenster und Terrassentüren sehr hell. Alle Wohneinheiten verfügen über einen Pkw-Stellplatz und einen Abstellraum. Ein Ort, an dem man die Natur und das Meer in ihrer ganzen Pracht erleben kann.
Wohnungstyp: Etagenwohnung
Provisionspflichtig: nein
Küche: Einbauküche, offen
Anzahl Schlafzimmer: 2
Anzahl Badezimmer: 2
Terrasse: 1
Garten: ja
Pool: ja
Keller: nein
Klimaanlage: ja
Fahrstuhl: ja
Anzahl der Parkflächen: 1 x Außenstellplatz
Möbliert: Teilmöbliert
Qualität der Ausstattung: gehoben
Bodenbelag: Fliesen
Zustand: Erstbezug
Energieklasse: B
Heizung: Fußboden
Befeuerungsart: Wärmepumpe
Energieausweistyp: Bedarfsausweis
Unsere Angebote sind für Käufer provisionsfrei!
Bei der Ausarbeitung unserer Angebote gehen wir mit größter Sorgfalt vor. Die von uns gemachten Informationen beruhen auf Angaben unserer Auftraggeber, für deren Richtigkeit und Vollständigkeit wir keine Gewähr bzw. Haftung übernehmen können. Zwischenverkauf, Preisänderungen und Irrtümer sind vorbehalten. Bei den Preisangaben zu unseren Immobilien handelt es sich um Nettopreise zuzüglich Mehrwertsteuer (I.V.A.) bei Neubauten oder Grunderwerbssteuer (I.T.P.) bei Bestandsimmobilien.
Das könnte Ihnen auch gefallen

Alfred Huber - Internationale Immobilien
Telefon: (08654) 494046
Fax: (08654) 494047










































