Bellreguard:
Schönes modernes Eck-Stadthaus mit 4 SZ, 2 Bäder, Garage und vielen Extras
Objekt-Nr.: CNS-FK-0625


























































Preis:
290.000 €
Wohnfläche ca.:
285 m²
Zimmeranzahl:
6
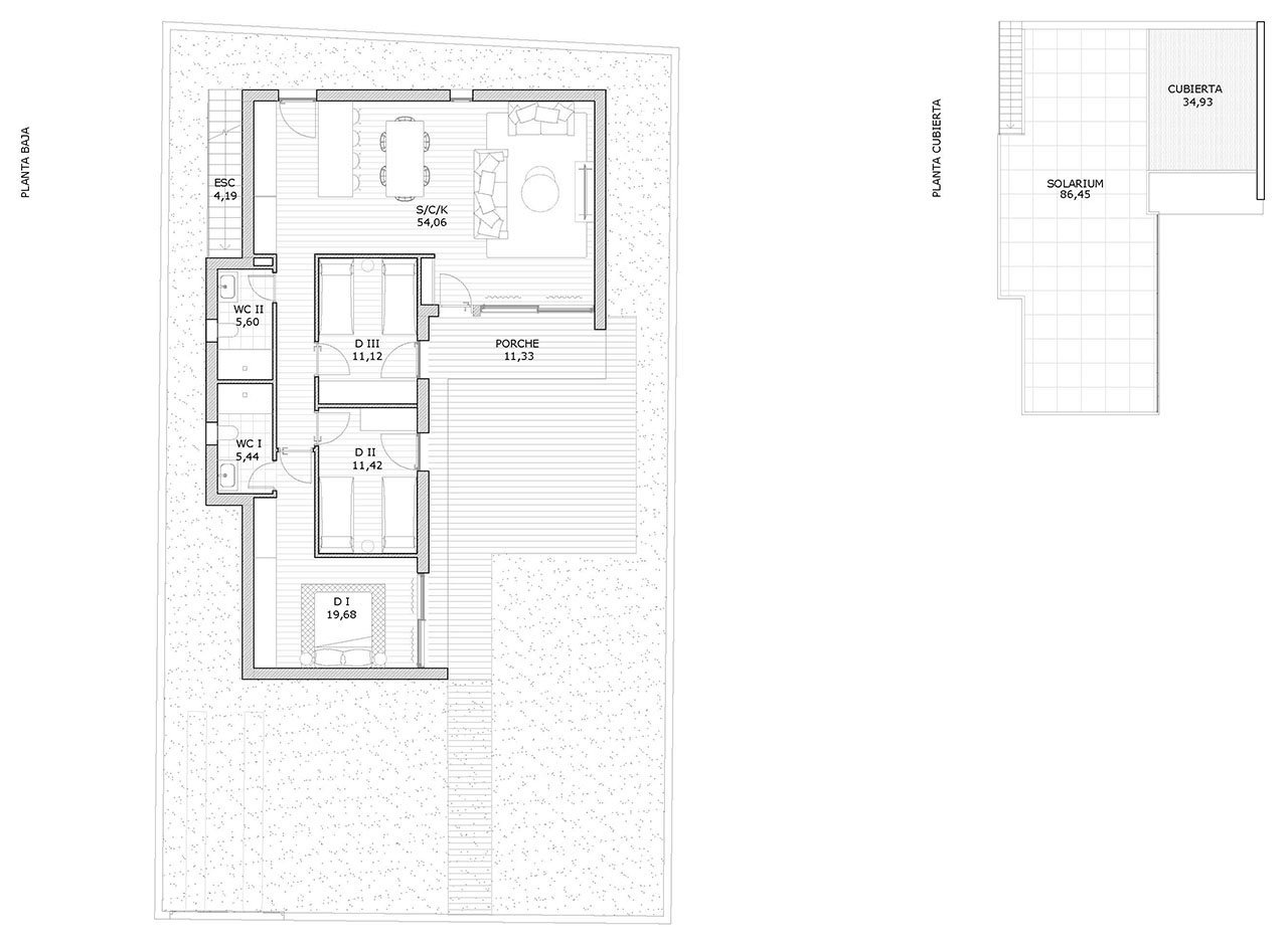
Dieses spektakuläre Eck-Stadthaus lässt keine Wünsche offen. Es verteilt sich auf drei Ebenen mit insgesamt vier Schlafzimmern, zwei Badezimmern und zwei WCs. Durch die gute Bauweise wird im Moment mit dem Kamin geheizt. Es ist eine Vorinstallation für eine Zentralheizung verbaut und durch den Stadtgasanschluss lässt sich eine Gasheizung unkompliziert implementieren. Des weiteren wurde beim Bau des Hauses der Komfort nicht aus den Augen gelassen und die Möglichkeit in Betracht gezogen eines Tages einen Fahrstuhl einzubauen. Dafür wurde bereits ein Schacht integriert der den Einbau eines Aufzuges erleichtert. Im Erdgeschoss finden wir die geräumige Garage, den offenen Eingangsbereich mit prächtiger Eingangstür, ein Gäste-WC und die Küche mit offenem Wohn- & Essbereich. In der ersten Etage gibt es drei Schlafzimmer mit zwei Badezimmern und einen Hauswirtschaftsraum. Die zweite Etage besteht aus einem großen Zimmer mit Balkon- welches aktuell als Büro genutzt wird - einem Gäste WC und einer teils überdachten Terrasse mit einem Abstellraum. Zusammenfassend bietet dieses Haus den gewünschten Komfort für den Alltag und genügend Platz für die ganze Familie.
Haustyp: Reihenhaus
Etagenanzahl: 3
Provisionspflichtig: nein
Küche: Einbauküche
Anzahl Schlafzimmer: 4
Anzahl Badezimmer: 2
Terrasse: 2
Kamin: ja
Als Ferienhaus geeignet: ja
Anzahl der Parkflächen: 1 x Garage
Baujahr: 2008
Bodenbelag: Fliesen
Zustand: gepflegt
Unsere Angebote sind für Käufer provisionsfrei!
Bei der Ausarbeitung unserer Angebote gehen wir mit größter Sorgfalt vor. Die von uns gemachten Informationen beruhen auf Angaben unserer Auftraggeber, für deren Richtigkeit und Vollständigkeit wir keine Gewähr bzw. Haftung übernehmen können. Zwischenverkauf, Preisänderungen und Irrtümer sind vorbehalten. Bei den Preisangaben zu unseren Immobilien handelt es sich um Nettopreise zuzüglich Mehrwertsteuer (I.V.A.) bei Neubauten oder Grunderwerbssteuer (I.T.P.) bei Bestandsimmobilien.
Das könnte Ihnen auch gefallen

Alfred Huber - Internationale Immobilien
Telefon: (08654) 494046
Fax: (08654) 494047








































