Orito:
Wunderschöne Reihenhäuser mit 3 Schlafzimmern, 2 Bädern, Gäste-WC, Keller, Dachterrasse, Kfz-Stellplatz und Gemeinschaftspool bei Alenda Golf
Objekt-Nr.: HA-OTN-110-R02







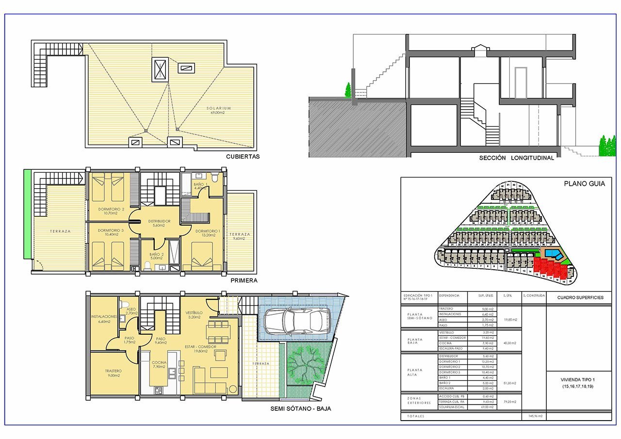
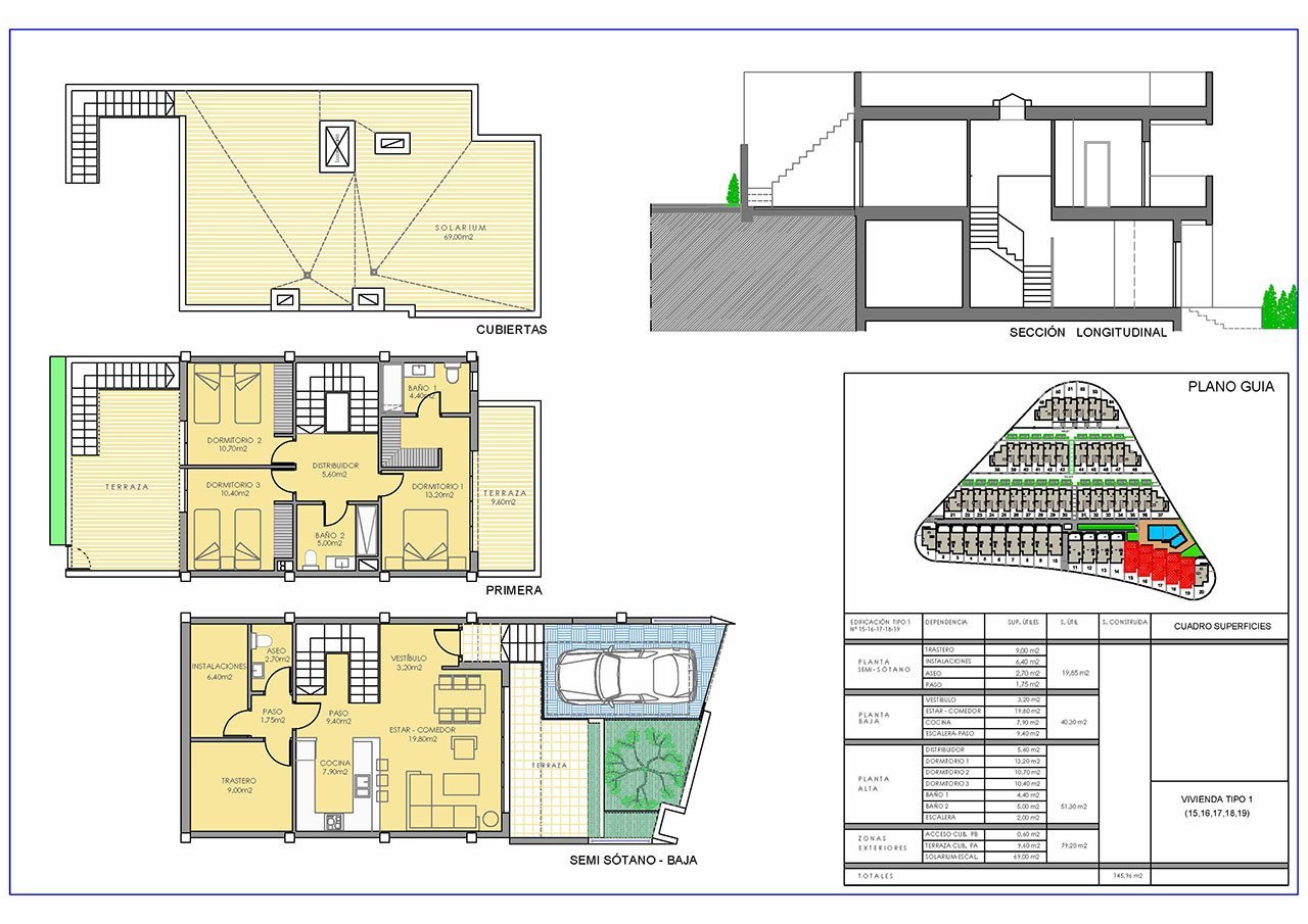
Grundriss

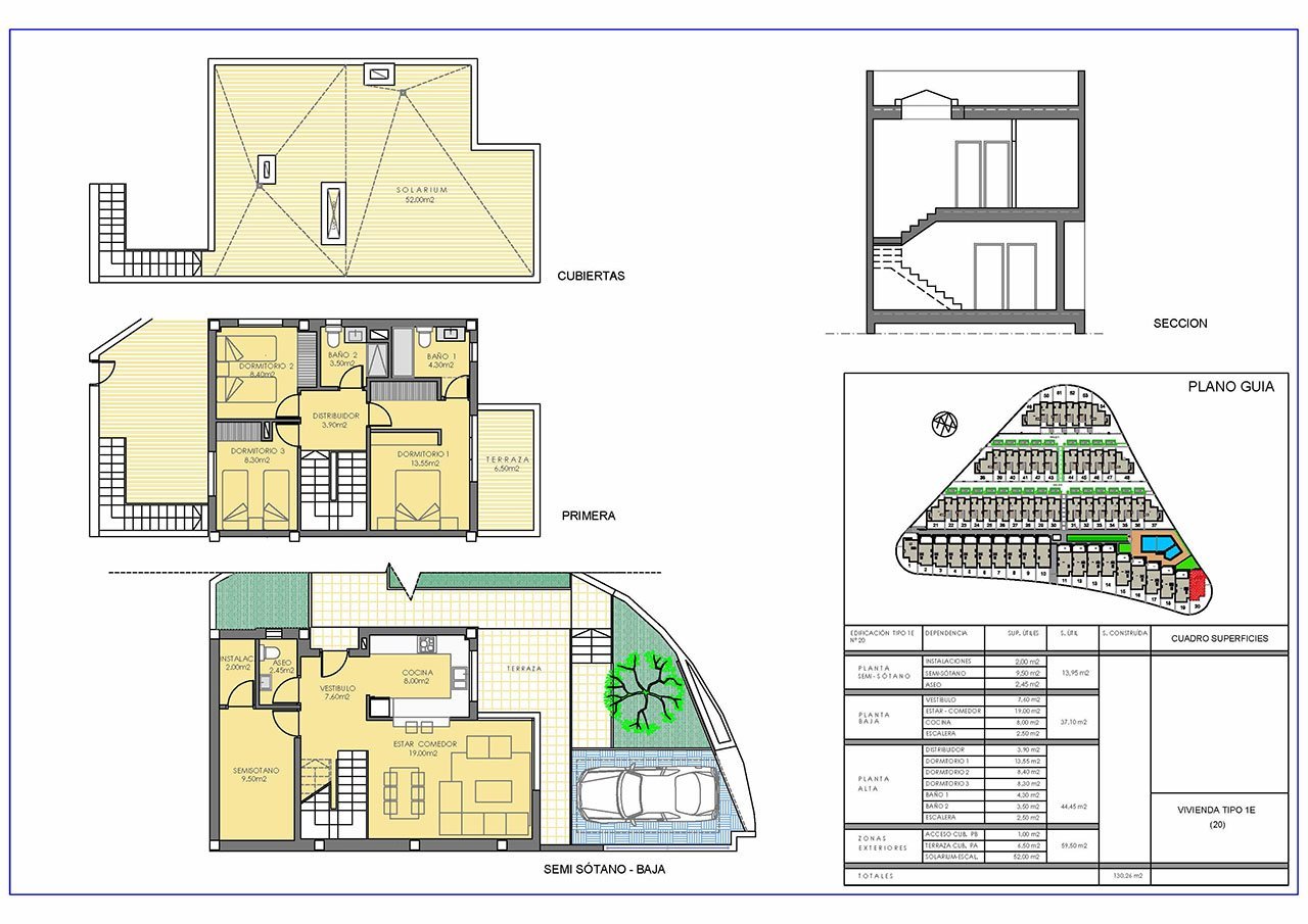
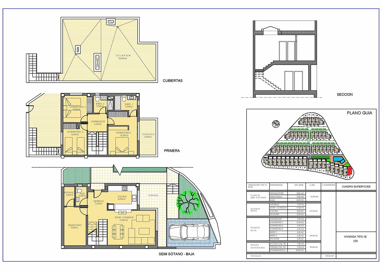
Grundriss










Preis:
330.000 €
Wohnfläche ca.:
182 m²
Zimmeranzahl:
4
Die wunderschönen und komfortablen Reihenhäuser verfügen über eine konstruierte Fläche von ca. 182 m² - 215 m² (verschiedene Modelle, inklusive Terrassen) mit
3 Schlafzimmern,
2 Badezimmern (eines davon en-suite),
1 Gäste-WC,
1 Wohn-/Esszimmer mit
moderner Einbauküche,
1 Keller (ca. 14 m² - 20 m²),
1 Balkon und
1 Dachterrasse (ca. 52 m² - 69 m²).
Die abgeschlossene Wohnanlage mit nur 54 ansprechenden 3-Schlafzimmer-Reihenvillen bietet die perfekte Kombination einer ruhigen, beschaulichen Lage am Alenda Golfplatz und dem nur 15 Autominuten entfernten, lebhaften Strand- und Nachtleben in Alicante.
Die Bewohner dieser Wohnanlage haben exklusiven Zugang zu einem breiten Spektrum an erstklassigen Dienstleistungen: Genießen Sie ein erfrischendes Bad im Gemeinschaftspool, halten Sie Ihren Körper im voll ausgestatteten Fitnessstudio in Form oder verbringen Sie schöne Stunden mit Freunden und Familie in den gemeinschaftlichen Grünanlagen.
Zu den Einrichtungen der benachbarten Golfanlage gehört ein Klubhaus mit Fitnessraum, Restaurant, Bar und Paddle-Tennisplätzen. In der unmittelbaren Umgebung befinden sich eine bilinguale Schule (englisch und spanisch) sowie ein Supermarkt. Die Wohnanlage nahe Elche bietet ein hohes Maß an Lebensqualität in ruhiger Umgebung am gepflegten Golfplatz. Der abgeschlossene Komplex bietet zudem Sicherheit und die direkte Nachbarschaft zu anderen Eigentümern.
Haustyp: Reihenhaus
Provisionspflichtig: nein
Küche: Einbauküche, offen
Anzahl Schlafzimmer: 3
Anzahl Badezimmer: 2
Terrasse: 3
Gäste-WC: ja
Pool: ja
Keller: teil unterkellert
Als Ferienhaus geeignet: ja
Anzahl der Parkflächen: 1 x Außenstellplatz
Möbliert: Teilmöbliert
Qualität der Ausstattung: gehoben
Bauphase: Haus fertig gestellt
Bodenbelag: Fliesen
Zustand: Erstbezug
Unsere Angebote sind für Käufer provisionsfrei!
Bei der Ausarbeitung unserer Angebote gehen wir mit größter Sorgfalt vor. Die von uns gemachten Informationen beruhen auf Angaben unserer Auftraggeber, für deren Richtigkeit und Vollständigkeit wir keine Gewähr bzw. Haftung übernehmen können. Zwischenverkauf, Preisänderungen und Irrtümer sind vorbehalten. Bei den Preisangaben zu unseren Immobilien handelt es sich um Nettopreise zuzüglich Mehrwertsteuer (I.V.A.) bei Neubauten oder Grunderwerbssteuer (I.T.P.) bei Bestandsimmobilien.
Das könnte Ihnen auch gefallen

Alfred Huber - Internationale Immobilien
Telefon: (08654) 494046
Fax: (08654) 494047

























































































